Coachman Lusso

The Coachman Lusso is the ultimate choice for anyone searching for a truly premium touring caravan. Available now at Kimberley  in Nottingham and Darlington, the Lusso combines outstanding build quality with exceptional comfort and innovative features. Whether you’re based locally in the Midlands. or visiting us from Newcastle, Middlesbrough, or elsewhere in the North East, our team is here to help you explore everything this luxury model has to offer.

The 2026 range includes a roof mounted solar panel and Truma Comfort Air Conditioning as standard.

We are taking orders now on new 2026 Coachman Lusso - Enquire to find out more!

Prices from £49,750

21
21
21
21
21
21
21
21
21
21
21
21
21
21
21
21
21
21
21
21
21

Key Features

External

  • 8ft wide automotive style, fully bonded aerodynamic body shell
  • AL-KO AKS 3004 Stabiliser and Active Trailer Control system 
  • NEW Superior one-piece exterior door with high security locking system and easy action flyscreen 
  • E & P Self levelling system with control panel
  • Underfloor Whale insulated 36 litre fresh water tank system

Interior

  • NEW 120-watt roof mounted solar panel 
  • Air Conditioning as standard
  • Premium high-quality fabrics
  • NEW Superior foam construction upholstery
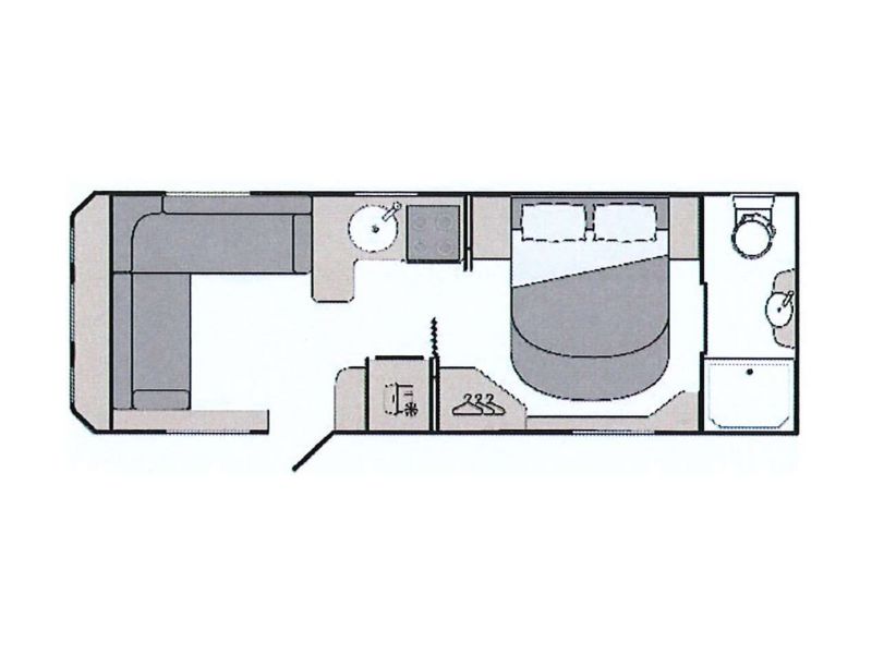
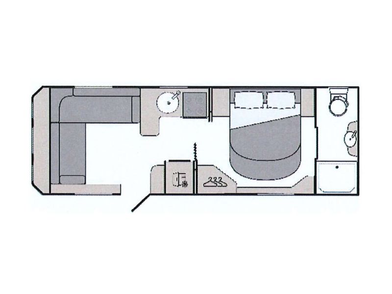
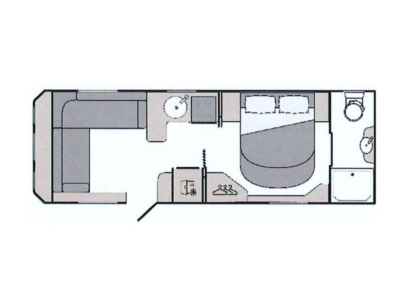
  • Spacious L -Shaped front lounge seating 
  • NEW Co-ordinating Foot Stool 
  • LED layered lighting 
  • NEW Luxurious deep pile stain resistant loose lay carpets
  • Alde wet central heating and hot water system with 5 year Glycol
  • 5G ready Wi-Fi

KITCHEN

  • Under locker integrated extractor fan 
  • L-Shape designed kitchen with increased workspace and deeper cupboards
  • Thetford N4142 137 litre electronic fridge freezer (LUSSO I)
  • Thetford N4145 159 litre electronic fridge freezer (LUSSO II & LUSSO Ill)
  • Thetford fan assisted oven 
  • Thetford dual fuel hob with cast iron pan rest
Prices from:

£49,750

Call Kimberley Nottingham: 01159 382 401

Call Kimberley Nottingham:

01159 382 401

Call Kimberley Darlington: 01325 383 333

Call Kimberley Darlington:

01325 383 333

Download Brochure

New 2026 Coachman Lusso Models

Remaining New Coachman Lusso Stock

  • NEW Exterior access battery box with mains electric inlet and external satellite and aerial connections
  • NEW Hartal smooth action pleated blinds with flyscreens to all windows
  • NEW Deeper quality foam construction mattresses (fixed beds)
  • NEW Overhead locker profile with LED lighting
  • NEW LED layered lighting
  • NEW Coachman branded entrance light
  • NEW LED lighting with halo feature within the front pillars
  • NEW LED lighting with halo feature integrated within the fixed headboards
  • NEW Hartal smooth action pleated blind with flyscreen integrated behind kitchen
  • NEW Flatbed ventilated microwave oven with co-ordinating flush fitting acrylic housing unit
  • NEW Contemporary matt black furniture handles with shell locking mechanism
  • NEW Black domestic style ladder radiator in bathroom
  • NEW Built-in contrast panel to sides and rear walls of shower cubicle, storage, LED downlight and black pivot door (model specific)
  • NEW Domestic style bathroom door handles with retractable magnetic lock (model specific)
  • NEW Vanity splashback in Elite design with new mirror arrangement
  • NEW Vanity tap in matt black finish
  • NEW Stylish curved vanity unit incorporating a contemporary black and white colour scheme
  • NEW Bluetooth speaker system
  • NEW 5G ready WiFi
  • NEW Truma Compact air conditioning unit
  • NEW Optical smoke alarm
  • NEW Carbon monoxide detector

  • European Whole Vehicle Type Approved (EWVTA) 
  • EN1645 Grade 3 classification for heating and insulation -cold chamber tested 
  • 8ft wide automotive style, fully bonded aerodynamic body shell 
  • AL-KO, galvanised steel chassis with euro axle, overrun device and easy action handbrake 
  • Screwless, fully bonded awning rail to both sides 
  • 25mm aluminium sandwich sidewall construction with polystyrene insulation core 
  • 25mm sandwich construction roof for added strength and insulation 
  • 45mm sandwich construction floor with internal bracing for added strength 
  • 13 pin car 'Jaeger' connector 
  • 8ft wide ABS front panel incorporating, integral grab handles, fixed panoramic roof window, 3 flush fitting opening front windows and dual integrated front lockers for gas and storage with gas strut retainers 
  • 8ft wide ABS rear panel with white integral grab handles, high level brake light and light clusters 
  • Contrast colour step-on hitch cover with tread plates for easy cleaning of front windows 
  • E & P Self levelling system with control panel 
  • 10 spoke, hyper silver 'Falcon' alloy wheels and mud flaps 
  • Underslung AL-KO spare wheel carrier complete with steel spare wheel 
  • Mobile wastewater carrier 
  • Full length exterior graphics with front graphics 
  • Shock absorbers for smoother towing 
  • 'Primo' privacy double glazed opening side windows with letterbox style kitchen window (Lusso II) 
  • NEW 120 watt roof mounted solar panel 
  • LED awning light and off-side services light 
  • Additional under bed access locker 
  • Whale exterior cold shower 
  • Whale external gas BBQ point with Easi-Slide lid
  • Whale 230 volt external mains socket with Easi-Slide lid 
  • Exterior access battery box with mains electric inlet and external satellite and aerial connections 
  • NEW Superior one piece exterior door with high security locking system and easy action flyscreen 
  • Entrance step 
  • Whale bulkhead mounted gas regulator for use with butane or propane gas bottles, supplied with flexible hose for propane

  • Smooth action mechanism Softrollo pleated blinds with flyscreens to all windows 
  • Luxury voile panel to the bedroom window 
  • Premium high-quality fabrics 
  • Spacious L -Shaped front lounge seating 
  • NEW Superior foam construction upholstery with co-ordinating scatter cushions, higher and more supportive backrests and armrests
  • NEW Co-ordinating Foot Stool 
  • Luxurious mattress on the fixed bed 
  • Retractable fixed bed giving even more freedom to walk around 
  • Concertina room divider between the kitchen & bedroom area (Lusso I & Lusso II) 
  • Domestic floor covering in 'French Oak-Dark Grey' design 
  • Unique Wood colour scheme 
  • New Luxurious deep pile stain resistant loose lay carpets 
  • Contemporary two-toned cranked style locker doors in 'Morrisette and Sand' to the lounge and bedroom with soft close hinges Soft close hinges to all base unit doors 
  • Overhead locker profile in 'graphite' design with decorative silver trim and LED layered lighting 
  • LED layered lighting 
  • Centre console in 'graphite' design with integrated down lighting 
  • Contemporary matt black furniture handles and push button catches 
  • Dovetail joints and runners to all drawer units with soft close hinges 
  • Colour co-ordinated sockets and switches with chrome surrounds 
  • Easy action aluminium framed sliding front bed make up mechanism 
  • Easy access aluminium lift up bed frames, gas strut supported with sprung beech slats 
  • Lightweight free-standing table with dedicated storage area 
  • Seating and bed ventilation boards throughout 
  • Removable entrance mat with tray 
  • Shelving in selected overhead lockers 
  • Roof light to front lounge and fixed bed areas

  • Under locker integrated extractor fan 
  • L-Shape designed kitchen with increased workspace and deeper cupboards
  • Kitchen splashback in 'Marmo Bianco Matt'with integrated smooth action mechanism Softrollo pleated blind with flyscreen Thetford round stainless-steel underslung sink with worktop/flush fitting bowl infill
  • Flatbed ventilated Microwave oven with co-ordinating flush fitting acrylic housing unit in 'Flannel' Design
  • Domestic style flexible chrome and black kitchen tap
  • Kitchen splashback in 'Palladio' design
  • Composite kitchen worktops in 'Silver Pebble' design finish with rear upstand
  • Larger lift up kitchen worktop extension
  • Thetford dual fuel hob with cast iron pan rest, electronic ignition, glass lid and flame failure device
  • Thetford fan assisted oven has an interior light and separate grill with chrome finish and improved efficiency
  • LED touch sensitive dimmable under surface and locker ambience enhancing lighting
  • 'Bianca' acrylic glass kitchen locker doors with domestic soft close hinges
  • Positive catches to main kitchen drawers
  • Deep pull-out chrome baskets to lower kitchen cupboards
  • Thetford N4142 137 litre electronic fridge freezer (LUSSO I)
  • Thetford N4145 159 litre electronic fridge freezer (LUSSO II & LUSSO Ill)

  • White domestic style ladder radiator in bathroom
  • Luxurious fully lined domestic style square shower cubicle with built in contrast panel, storage, LED downlight and pivot door LED downlight and pivot door 
  • Folding hanging hook in the shower area 
  • Matt black shower mixer 
  • Matt black finish bathroom fittings 
  • Thetford C262 swivel toilet with electric flush and wheeled waste container 
  • Mini roof light in the bathroom 
  • Privacy window to all bathrooms 
  • Smooth action mechanism Softrollo pleated blind with flyscreen to bathroom window 
  • Feature panel on the bathroom door
  • Vanity splashbacks in 'Palledio' design 
  • Vanity worktops in 'Flannel' design 
  • Vanity tap in chrome and matt black finish 
  • Contemporary dual coloured co-ordinated oval top mounted vanity bowl Stylish curved vanity unit

  • Multi directional matt black LED reading spot lights with USB ports to all areas 
  • Matt black LED down lighter spot lights 
  • 100% low energy LED lighting throughout 
  • Floor level courtesy lighting 
  • Aide load limiter 
  • Mains connection lead (25m) 
  • 12 volt system (20 Amp) with battery charger and mains transformer 
  • 12 volt 'Seattle' multi-function digital control panel with awning light, water pump, water tank, 12v lights and master switches

  • DAB Radio 
  • Entertainment speakers in lounge and bedroom areas 
  • Dedicated TV station with 230v, 12v, satellite and aerial sockets 
  • Dedicated TV station with 230v, 12v, and aerial sockets in fixed bed areas 
  • Double USB socket and 'C' Port socket situated at the main dedicated TV station 
  • Integral USB socket in the spotlights to all areas 
  • Wireless mobile phone charging unit (integrated into the bulkhead) suitable for iPhone 8 & Samsung 7 and above Teleco Teleplus TV aerial with integrated FM/DAB reception capability 
  • 5G ready Wi-Fi

Plumbing & Heating

  • Alde wet central heating and hot water system with 5 year Glycol, NEW 3030 Plus boiler including ALOE Flow, integrated pump and programmable LCD touch screen control panel 
  • Truma Aventa Comfort air conditioning unit 
  • Aide Flow continuous hot water system 
  • Whale Water Master mains connection 
  • Whale Watermaster inlet point -intelligent control with high flow submersible pump 
  • 40 litre Onboard fresh water tank

  • AL-KO AKS 3004 Stabiliser and Active Trailer Control system 
  • AL-KO secure wheel lock (LUSSO I) 
  • 2 x AL-KO secure wheel locks plus jacking kit (LUSSO II & LUSSO Ill) 
  • Phantom VanGuard remote control alarm system with PIR and tilt sensors for added security (fob controls the awning light) 
  • Optical smoke alarm 
  • Carbon monoxide detector 
  • CRIS ID number and concealed security data ID chips 
  • High security one key locking system supplied with 2 moulded keys 
  • Dometic safe